Beschrijving

Keurig, instapklaar, appartement met 2 slaapkamers op de tweede verdieping.

In een rustige en kindvriendelijke buurt en op loopafstand van wijkwinkelcentra 'De Wielewaal' en 'De Nije Nering', staat dit goed onderhouden 3-kamerappartement met berging op de begane grond. Het appartement is keurig uitgevoerd en is instapklaar, er is voldoende openbare parkeergelegenheid rondom het complex. Het appartement is gedeeltelijk voorzien van dubbele beglazing en het energielabel is D.

Er is sprake van een actieve VvE, de maandelijkse bijdrage bedraagt € 256,61. Dit bedrag is hoger dan gebruikelijk omdat er volop wordt gespaard om alle kozijnen en beglazing in het complex te vervangen.

Indeling

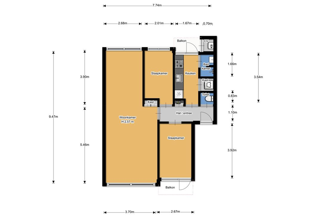
Entree/hal met toilet en meterkast; Ruime woonkamer welke eenvoudig is op te splitsen waardoor een 3e slaapkamer gerealiseerd kan worden; Keuken voorzien van een gaskookplaat en afzuigkap; Badkamer voorzien van een douche en een wastafel met badmeubel; 2 slaapkamers van ca.  11 en 7 m2; De wasmachine kan worden geplaatst in een vaste kast; Er zijn 2 balkons aanwezig, één is bereikbaar via de keuken en de andere via de grote slaapkamer; De Cv-ketel bevindt zich in de Cv-ruimte naast het balkon.

Op de begane grond is een praktische (fietsen)berging aanwezig van ca. 7 m2.

Bijzonderheden

•	Woonoppervlak 68 m² en 210 m³ inhoud
•	Energielabel D, deels voorzien van dubbel glas
•	Cv-ketel Nefit van 2013
•	VvE bijdrage: €256,61 per maand

Het appartement is al helemaal leeg, aanvaarding op korte termijn is mogelijk.

Interesse? Neem contact met ons op en kom dit leuke appartement eens bekijken.

Kenmerken