Met een eigen account kun je panden volgen, opslaan als favoriet, je zoekprofiel opslaan en jouw eigen notities bij een huis maken.
Algemeen
Wauw, wat een prachtige woning op een unieke locatie!
Vlakbij Hoogeveen, maar heerlijk landelijk gelegen, staat deze schitterende en sfeervolle woning met gastenverblijf, bergingen, stallen en een rijbak. Dit object is dan ook uitermate geschikt voor paardenliefhebbers. De totale perceelgrootte bedraagt ca. 8.834 m².
De woning is traditioneel gebouwd in 2000 en is voorzien van vele lande... Meer informatie
Vlakbij Hoogeveen, maar heerlijk landelijk gelegen, staat deze schitterende en sfeervolle woning met gastenverblijf, bergingen, stallen en een rijbak. Dit object is dan ook uitermate geschikt voor paardenliefhebbers. De totale perceelgrootte bedraagt ca. 8.834 m².
De woning is traditioneel gebouwd in 2000 en is voorzien van vele lande... Meer informatie
-
Kenmerken
Alle kenmerken Type object Woonhuis, eengezinswoning, vrijstaande woning Bouwperiode 2000 Aangeboden sinds Vrijdag 5 december 2025 -
Locatie
Kenmerken
| Overdracht | |
|---|---|
| Referentienummer | 00460 |
| Vraagprijs | € 1.100.000,- k.k. |
| Aanvaarding | In overleg |
| Aangeboden sinds | Vrijdag 5 december 2025 |
| Laatste wijziging | Dinsdag 28 april 2026 |
| Bouw | |
|---|---|
| Type object | Woonhuis, eengezinswoning, vrijstaande woning |
| Soort bouw | Bestaande bouw |
| Bouwperiode | 2000 |
| Dakbedekking | Dakpannen |
| Type dak | Dwarskap |
| Isolatievormen | HR-glas, Volledig geïsoleerd |
| Oppervlaktes en inhoud | |
|---|---|
| Perceeloppervlakte | 8.834 m² |
| Woonoppervlakte | 201,1 m² |
| Inhoud | 715 m³ |
| Oppervlakte externe bergruimte | 58 m² |
| Indeling | |
|---|---|
| Aantal bouwlagen | 2 |
| Aantal kamers | 6 (waarvan 5 slaapkamers) |
| Aantal badkamers | 2 (en 2 aparte toiletten) |
| Tuin | |
|---|---|
| Type | Tuin rondom |
| Hoofdtuin | Ja |
| Oriëntering | Zuiden |
| Staat | Normaal |
| Energieverbruik | |
|---|---|
| Energielabel | A+ |
| Uitrusting | |
|---|---|
| Warm water | Elektrische boiler |
| Verwarmingssysteem | Houtkachel, Vloerverwarming (gedeeltelijk), Warmtepomp |
| Ventilatie methode | Mechanische ventilatie |
| Badkamervoorzieningen Badkamer 1 | Douche, Dubbele wastafel, Ligbad, Toilet, Wastafelmeubel |
| Badkamervoorzieningen Badkamer 2 | Douche, Wastafel, Wastafelmeubel |
| Glasvezelaansluiting aanwezig | Ja |
| Tuin aanwezig | Ja |
| Heeft schuur/berging | Ja |
| Heeft zonnepanelen | Ja |
| Heeft ventilatie | Ja |
| Kadastrale gegevens | |
|---|---|
| Kadastrale aanduiding | Hoogeveen B 4164 |
| Perceeloppervlakte | 1.979 m² |
| Omvang | Geheel perceel |
| Eigendomsituatie | Eigen grond |
| Kadastrale aanduiding | Hoogeveen B 5317 |
| Perceeloppervlakte | 855 m² |
| Omvang | Geheel perceel |
| Eigendomsituatie | Eigen grond |
| Kadastrale aanduiding | Hoogeveen B 5318 |
| Perceeloppervlakte | 6.000 m² |
| Omvang | Geheel perceel |
| Eigendomsituatie | Eigen grond |
Beschrijving
Wauw, wat een prachtige woning op een unieke locatie!
Vlakbij Hoogeveen, maar heerlijk landelijk gelegen, staat deze schitterende en sfeervolle woning met gastenverblijf, bergingen, stallen en een rijbak. Dit object is dan ook uitermate geschikt voor paardenliefhebbers. De totale perceelgrootte bedraagt ca. 8.834 m².
De woning is traditioneel gebouwd in 2000 en is voorzien van vele landelijke en authentieke kenmerken. Uiteraard is er sprake van volledige isolatie en HR beglazing. Er zijn maar liefst 28 zonnepanelen aanwezig (á 370 wP) en middels het warmtepompsysteem is deze woning all-electric, er wordt geen gas gebruikt. Het energielabel is A+, echter is dit label afgegeven vóórdat warmptepomp is geïnstalleerd.
Vlakbij Hoogeveen, maar heerlijk landelijk gelegen, staat deze schitterende en sfeervolle woning met gastenverblijf, bergingen, stallen en een rijbak. Dit object is dan ook uitermate geschikt voor paardenliefhebbers. De totale perceelgrootte bedraagt ca. 8.834 m².
De woning is traditioneel gebouwd in 2000 en is voorzien van vele landelijke en authentieke kenmerken. Uiteraard is er sprake van volledige isolatie en HR beglazing. Er zijn maar liefst 28 zonnepanelen aanwezig (á 370 wP) en middels het warmtepompsysteem is deze woning all-electric, er wordt geen gas gebruikt. Het energielabel is A+, echter is dit label afgegeven vóórdat warmptepomp is geïnstalleerd.
Indeling
Entree/hal met meterkast, technische ruimte en toilet; Heerlijke woonkeuken met een keukenblok in landelijke stijl welke is voorien van een inductie-fornuis met elektrische oven, afzuigkap, koelkast en een vaatwasser; Praktische bijkeuken met wasmachineopstelling; Lichte woonkamer met vrij uitzicht en voorzien van een sfeervolle houtkachel; Slaapkamer van ca. 17 m²; Luxe badkamer voorzien van een douche, ligbad, toilet en een badmeubel met dubbele wastafel.
De gehele begane grond wordt verwarmd middels vloerverwarming.
De gehele begane grond wordt verwarmd middels vloerverwarming.
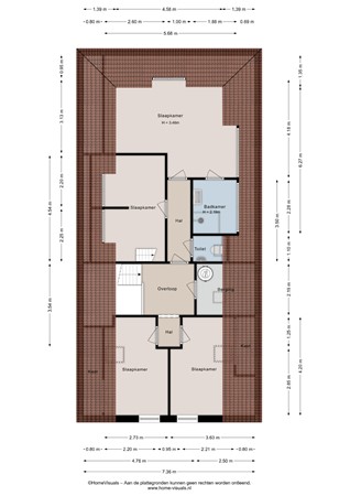
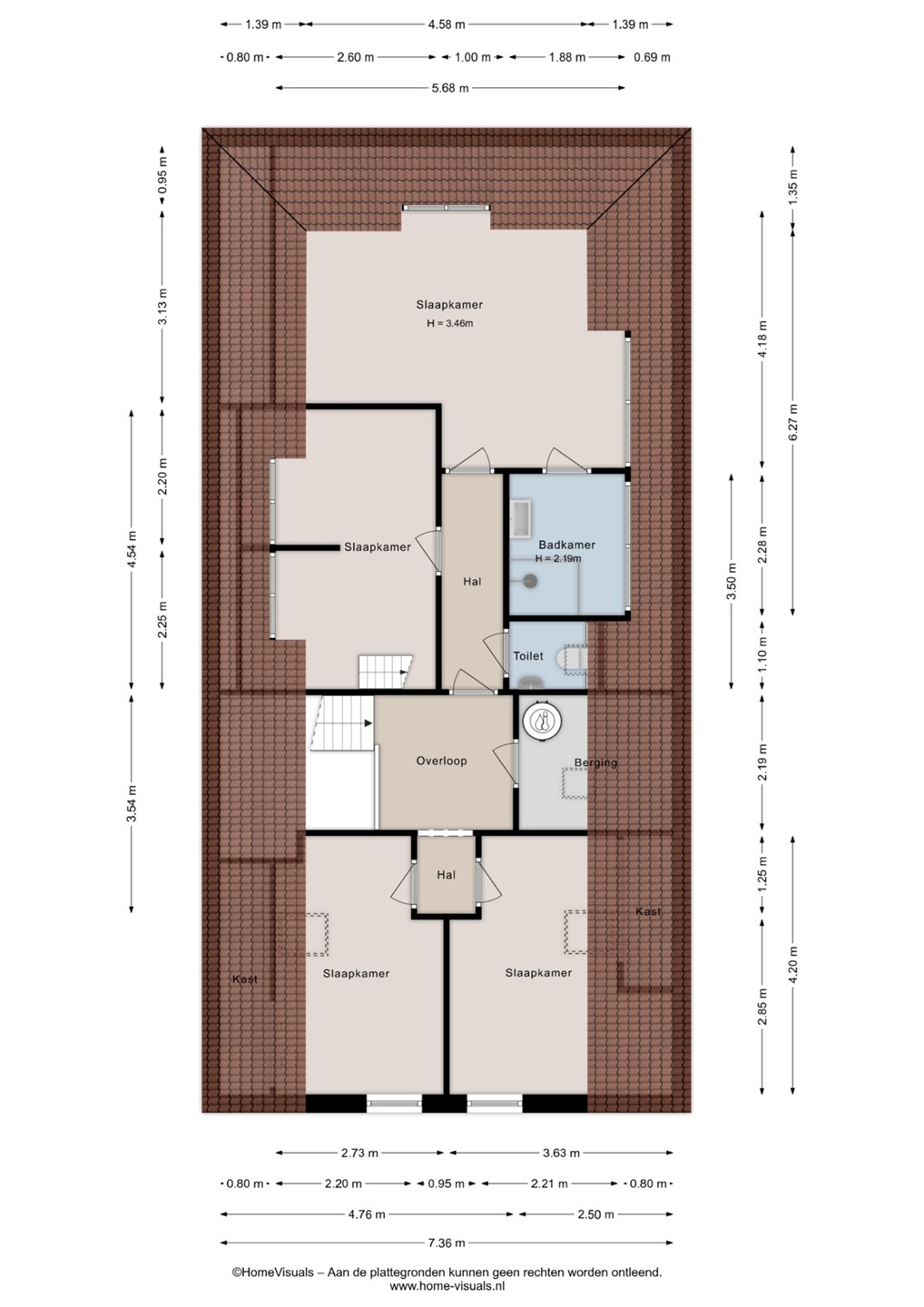
Eerste verdieping
Overloop met technische ruimte/berging en een separaat toilet; 4 slaapkamers van ca. 17, 10 8.5 en 8.5 m². De 2 slaapkamers aan de voorzijde kunnen eenvoudig worden samengevoegd tot één grote slaapkamer, de slaapkamer met grote dakkapel heeft nog een extra verdieping welke als speel of slaapzolder kan worden gebruikt; De grootste slaapkamer beschikt over een badkamer en suite, deze badkamer is voorzien van een inloopdouche en een wastafel.
Tuin
Aan de Zuid- en Oostzijde van de woning ligt een riant tuinterras met prachtig uitzicht over de landerijen. Ook is er een eigen moestuin aanwezig.
Het perceel is zodanig ingericht dat het weiland rond de woning ligt, hierdoor is er vanuit de woning volledig zicht op de eigen dieren.
Bijgebouwen:
Het vrijstaande gastenverblijf is voorzien van een woonkamer, keukenblokje en een badkamer met douche en toilet. Deze ruimte is ook zeer geschikt als B&B.
Naast de woning staat het authentieke bakhuisje welke in gebruik is als berging.
Kapschuur met bergruimte en een tweede berging met overkapping.
Het overdekte dierenverblijf is voorzien van 2 paardenstallen, een wasplaats en een zadelkamer.
Het perceel is zodanig ingericht dat het weiland rond de woning ligt, hierdoor is er vanuit de woning volledig zicht op de eigen dieren.
Bijgebouwen:
Het vrijstaande gastenverblijf is voorzien van een woonkamer, keukenblokje en een badkamer met douche en toilet. Deze ruimte is ook zeer geschikt als B&B.
Naast de woning staat het authentieke bakhuisje welke in gebruik is als berging.
Kapschuur met bergruimte en een tweede berging met overkapping.
Het overdekte dierenverblijf is voorzien van 2 paardenstallen, een wasplaats en een zadelkamer.
Bijzonderheden
• Woonoppervlak 201,1 m² en 715 m³ inhoud
• Perceelgrootte ca. 8.834 m²
• Gastenverblijf van 21.8 m²
• 28 zonnepanelen (2022)
• Lucht/water warmtepomp Remeha (2024)
• Geen gasverbruik, gasmeter is nog wel aanwezig
• Waterontharder aanwezig
Het woonhuis heeft een woonbestemming, het perceel heeft bestemming agrarisch.
Deze schitterende woning op een prachtige locatie is zeker een bezichtiging waard, neem gerust contact op om een afspraak in te plannen!
• Perceelgrootte ca. 8.834 m²
• Gastenverblijf van 21.8 m²
• 28 zonnepanelen (2022)
• Lucht/water warmtepomp Remeha (2024)
• Geen gasverbruik, gasmeter is nog wel aanwezig
• Waterontharder aanwezig
Het woonhuis heeft een woonbestemming, het perceel heeft bestemming agrarisch.
Deze schitterende woning op een prachtige locatie is zeker een bezichtiging waard, neem gerust contact op om een afspraak in te plannen!