Met een eigen account kun je panden volgen, opslaan als favoriet, je zoekprofiel opslaan en jouw eigen notities bij een huis maken.
Algemeen
Ben je op zoek naar een moderne en instapklare woning met 4 slaapkamers en een garage? Bekijk dan eens deze prachtige woning aan Roerdomplaan in Hoogeveen..
In de geliefde woonwijk 'Wolfsbos', met parkeerruimte voor de deur, staat deze moderne, gasloze en keurig onderhouden tussenwoning. De woning is gebouwd in 1973 en is de afgelopen jaren geheel gemoderniseerd. Middels het installeren van... Meer informatie
In de geliefde woonwijk 'Wolfsbos', met parkeerruimte voor de deur, staat deze moderne, gasloze en keurig onderhouden tussenwoning. De woning is gebouwd in 1973 en is de afgelopen jaren geheel gemoderniseerd. Middels het installeren van... Meer informatie
-
Kenmerken
Alle kenmerken Type object Woonhuis, eengezinswoning, tussenwoning Bouwperiode 1973 Status Verkocht onder voorbehoud Aangeboden sinds Vrijdag 20 maart 2026 -
Locatie
Kenmerken
| Overdracht | |
|---|---|
| Referentienummer | 00464 |
| Vraagprijs | € 375.000,- k.k. |
| Status | Verkocht onder voorbehoud |
| Aanvaarding | In overleg |
| Aangeboden sinds | Vrijdag 20 maart 2026 |
| Laatste wijziging | Vrijdag 17 april 2026 |
| Bouw | |
|---|---|
| Type object | Woonhuis, eengezinswoning, tussenwoning |
| Soort bouw | Bestaande bouw |
| Bouwperiode | 1973 |
| Dakbedekking | Dakpannen |
| Type dak | Zadeldak |
| Isolatievormen | Dubbel glas, HR-glas, Volledig geïsoleerd |
| Oppervlaktes en inhoud | |
|---|---|
| Perceeloppervlakte | 182 m² |
| Woonoppervlakte | 130 m² |
| Inhoud | 450 m³ |
| Oppervlakte externe bergruimte | 29 m² |
| Indeling | |
|---|---|
| Aantal bouwlagen | 3 |
| Aantal kamers | 6 (waarvan 5 slaapkamers) |
| Aantal badkamers | 1 (en 1 apart toilet) |
| Locatie | |
|---|---|
| Ligging | In woonwijk |
| Tuin | |
|---|---|
| Type | Achtertuin |
| Hoofdtuin | Ja |
| Oriëntering | Noorden |
| Staat | Normaal |
| Energieverbruik | |
|---|---|
| Energielabel | B |
| Uitrusting | |
|---|---|
| Warm water | Elektrische boiler |
| Verwarmingssysteem | Elektrische verwarming, Vloerverwarming (gedeeltelijk) |
| Keukenvoorzieningen | Inbouwapparatuur, Kookeiland |
| Badkamervoorzieningen | Dubbele wastafel, Inloopdouche, Toilet, Wastafelmeubel |
| Parkeergelegenheid | Vrijstaande stenen garage |
| Glasvezelaansluiting aanwezig | Ja |
| Tuin aanwezig | Ja |
| Heeft een garage | Ja |
| Heeft zonnepanelen | Ja |
| Kadastrale gegevens | |
|---|---|
| Kadastrale aanduiding | Hoogeveen D 6183 |
| Perceeloppervlakte | 182 m² |
| Omvang | Geheel perceel |
| Eigendomsituatie | Eigen grond |
Beschrijving
Ben je op zoek naar een moderne en instapklare woning met 4 slaapkamers en een garage? Bekijk dan eens deze prachtige woning aan Roerdomplaan in Hoogeveen..
In de geliefde woonwijk 'Wolfsbos', met parkeerruimte voor de deur, staat deze moderne, gasloze en keurig onderhouden tussenwoning. De woning is gebouwd in 1973 en is de afgelopen jaren geheel gemoderniseerd. Middels het installeren van elektrische (infrarood) vloerverwarming en een elektrische boiler is de woning gasloos gemaakt. Ook is de woning grotendeels voorzien van kunststof kozijnen met HR beglazing, is er sprake van vloer- muur- en dakisolatie en zijn er 12 zonnepanelen aanwezig, het energielabel is B.
In de geliefde woonwijk 'Wolfsbos', met parkeerruimte voor de deur, staat deze moderne, gasloze en keurig onderhouden tussenwoning. De woning is gebouwd in 1973 en is de afgelopen jaren geheel gemoderniseerd. Middels het installeren van elektrische (infrarood) vloerverwarming en een elektrische boiler is de woning gasloos gemaakt. Ook is de woning grotendeels voorzien van kunststof kozijnen met HR beglazing, is er sprake van vloer- muur- en dakisolatie en zijn er 12 zonnepanelen aanwezig, het energielabel is B.
Indeling
Entree/hal met meterkast en toilet; Ruime doorzon woonkamer; Moderne open keuken (2022) voorzien van een inductie kookplaat, afzuigkap, Amerikaanse koel-/vriescombinatie, vaatwasser en een combimagnetron.
Eerste verdieping
Overloop; 3 slaapkamers van ca. 15,7, 11,7 en 9,1 m²; Prachtige badkamer (2023) voorzien van een inloopdouche, 2e toilet en een dubbele wastafel met badmeubel.
Tweede verdieping
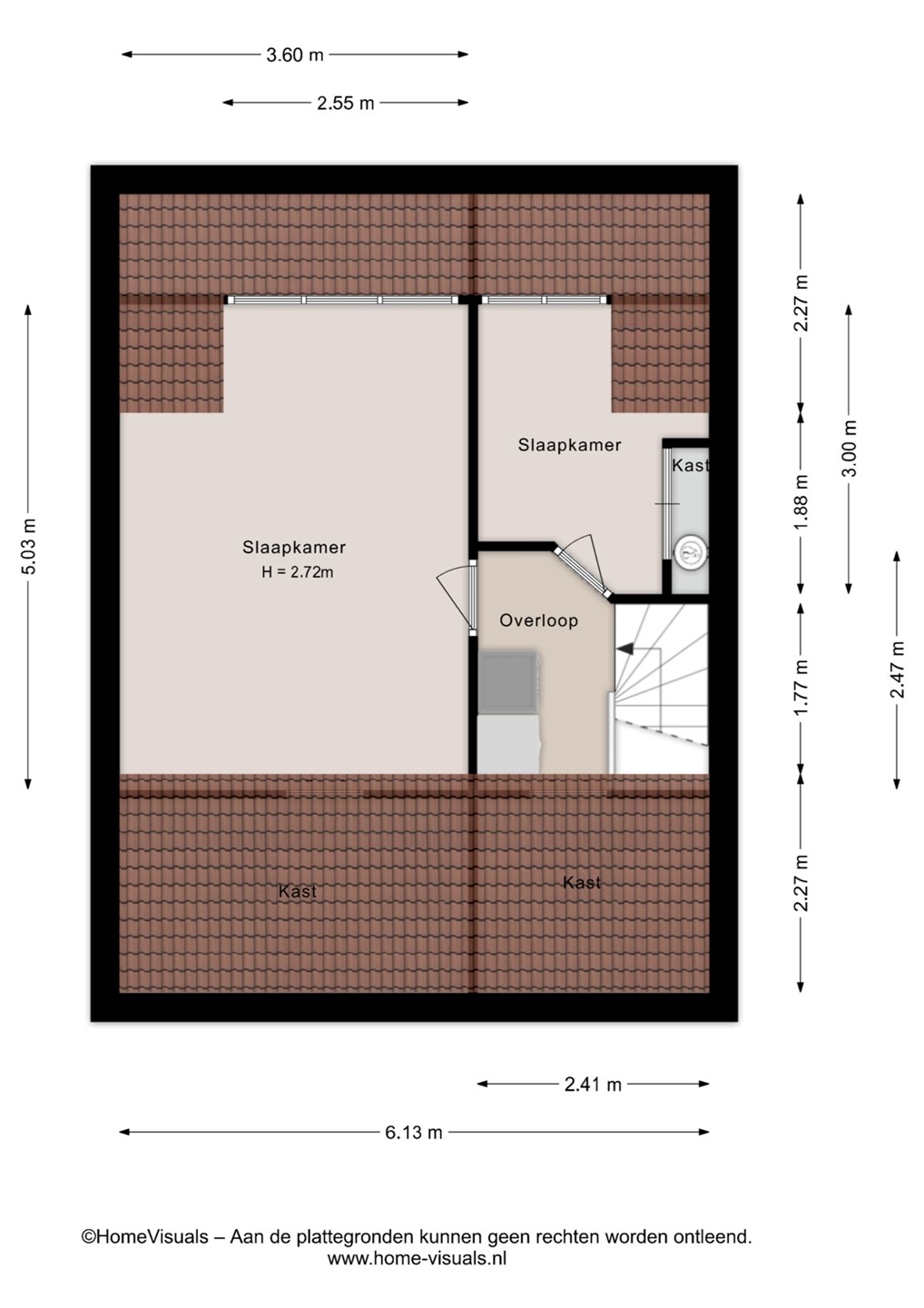
Middels een vaste trap is de zolderverdieping met dakkapel te bereiken. Hier bevinden zich een werkkamer, bergruimte en de 4e slaapkamer van ca. 18 m².
Tuin
De achtertuin is gelegen op het Noorden. Achterin de tuin staat de ruime garage van ca. 29 m².
Bijzonderheden
• Woonoppervlak 130 m² en 450 m³ inhoud
• Energielabel B, volledig geïsoleerd
• 12 zonnepanelen á 415 Wp
• Gasloos, elektrische verwarming en boiler
• Grotendeels voorzien van kunststof kozijnen
• Moderne keuken en sanitair
• Ruime garage aanwezig
Heb je interesse in deze prachtige woning? Neem dan snel contact op om een bezichtiging in te plannen!
• Energielabel B, volledig geïsoleerd
• 12 zonnepanelen á 415 Wp
• Gasloos, elektrische verwarming en boiler
• Grotendeels voorzien van kunststof kozijnen
• Moderne keuken en sanitair
• Ruime garage aanwezig
Heb je interesse in deze prachtige woning? Neem dan snel contact op om een bezichtiging in te plannen!